uab.gov.tr
Site Haritası
İletişim
LİMAN BAŞKANLIĞI DRONE ÇEKİMİ
Anasayfa
Kurumsal
Bakan Abdulkadir URALOĞLU
Bölge Liman Başkanı Mustafa ERGÜVEN
Organizasyon Şeması
Hizmet Standartları
İdari Sahamız
Denizcilik Mevzuatı
IMO Mevzuat
Resmi Gazete
GEMİ HAREKET-ÖTV'SİZ YAKIT
Özel Tekneler
Sıcak/Soğuk Çalışma Talebi
Seyir İzin Belgeleri/Evrakları
Deneme Seyri İzin Belgesi
Varış Bildirim Formu
Talim ve Eğitim Talebi
Su Altı Çalışma İzin Başvurusu
Seyir İzin (Transit-Log) Başvurusu
Yakıt İkmal İşlemi Belgeleri
İlk Defa Alınacak ÖTV'siz Yakıt İşlemleri
ÖTV'siz Yakıt Defteri Yenileme İşlemi
Borçlandırma Sayfası
DTGM ÖTV'siz Yakıt Bilgi Ekranı
Gemi insanları Serv.
Gemiadamı Bilgi Sistemi
Online Sınav Sistemi
Gemiadamları İşlem Dilekçeleri
Amatör Denizci Belgesi Eğitim Dokümanı
Kısa Mesafe Telsiz Eğitim Dökümanı
ADBS
Gemi Adamları Sistemi Kullanım Anlatımı
Bağlama Kütüğü
Gemi İsim Alımı (Umurbey Vatandaş Portalı)
İlk Kayıt İşlemleri
Satış İşlemleri
Randevu İşlemleri Anlatımı
Diğer İşlemler
Bağlama Kütüğü Harç Miktarları 2025
Umurbey Vatandaş Portalı (Randevu Sistemi)
Genel İşlemlerde İstenen Belgeler
Türk Milli Gemi Sicili
Milli Sicil Alış-Satış İşlemi
Randevu İşlemleri Anlatımı
İnşa Halindeki Sicile Tescil İşlemi
Milli Sicil Kiralama İşlemi
Umurbey Vatandaş Portalı (Randevu Sistemi)
Borçlandırma Sayfası
Milli Sicil İşlemlerinde İstenen Belgeler
KIYI YAPILARI DEN. BEL. SERV.
Kendi Kullanımı İçin Kişisel Olarak İmal Edilen Teknelerin Kayıt Prosedürü
Gemi Sanayi Veritabanı Programına (GSVP) Kayıt işlemleri
Muayene ve Test Sertifikası Düzenlenmesine İlişkin Uygulama Rehberi
T.C. UAB
Antalya Bölge Liman Başkanlığı
Arama
Anasayfa
Kurumsal
Bakan Abdulkadir URALOĞLU
Bölge Liman Başkanı Mustafa ERGÜVEN
Organizasyon Şeması
Hizmet Standartları
İdari Sahamız
Denizcilik Mevzuatı
IMO Mevzuat
Resmi Gazete
GEMİ HAREKET-ÖTV'SİZ YAKIT
Özel Tekneler
Sıcak/Soğuk Çalışma Talebi
Seyir İzin Belgeleri/Evrakları
Deneme Seyri İzin Belgesi
Varış Bildirim Formu
Talim ve Eğitim Talebi
Su Altı Çalışma İzin Başvurusu
Seyir İzin (Transit-Log) Başvurusu
Yakıt İkmal İşlemi Belgeleri
İlk Defa Alınacak ÖTV'siz Yakıt İşlemleri
ÖTV'siz Yakıt Defteri Yenileme İşlemi
Borçlandırma Sayfası
DTGM ÖTV'siz Yakıt Bilgi Ekranı
Gemi insanları Serv.
Gemiadamı Bilgi Sistemi
Online Sınav Sistemi
Gemiadamları İşlem Dilekçeleri
Amatör Denizci Belgesi Eğitim Dokümanı
Kısa Mesafe Telsiz Eğitim Dökümanı
ADBS
Gemi Adamları Sistemi Kullanım Anlatımı
Bağlama Kütüğü
Gemi İsim Alımı (Umurbey Vatandaş Portalı)
İlk Kayıt İşlemleri
Satış İşlemleri
Randevu İşlemleri Anlatımı
Diğer İşlemler
Bağlama Kütüğü Harç Miktarları 2025
Umurbey Vatandaş Portalı (Randevu Sistemi)
Genel İşlemlerde İstenen Belgeler
Türk Milli Gemi Sicili
Milli Sicil Alış-Satış İşlemi
Randevu İşlemleri Anlatımı
İnşa Halindeki Sicile Tescil İşlemi
Milli Sicil Kiralama İşlemi
Umurbey Vatandaş Portalı (Randevu Sistemi)
Borçlandırma Sayfası
Milli Sicil İşlemlerinde İstenen Belgeler
KIYI YAPILARI DEN. BEL. SERV.
Kendi Kullanımı İçin Kişisel Olarak İmal Edilen Teknelerin Kayıt Prosedürü
Gemi Sanayi Veritabanı Programına (GSVP) Kayıt işlemleri
Muayene ve Test Sertifikası Düzenlenmesine İlişkin Uygulama Rehberi
Site Haritası
İletişim
LİMAN BAŞKANLIĞI DRONE ÇEKİMİ
Evrak Doğrulama (E-Devlet)
Borçlandırma Sayfası (odemeler.udhb.gov.tr)
ADBS Başvuru Ekranı
Randevu Sistemi (Umurbey Vatandaş Portalı)
K.Y.D.B. SERVİSİ
Kendi Kullanımı İçin Kişisel Olarak İmal Edilen Teknelerin Kayıt Prosedürü
Gemi Sanayi Veritabanı Programına (GSVP) Kayıt işlemleri
Muayene ve Test Sertifikası Düzenlenmesine İlişkin Uygulama Rehberi
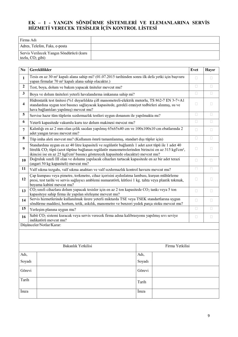
MUAYENE VE TEST SERTİFİKASI DÜZENLENMESİNE İLİŞKİN UYGULAMA REHBERİ.
Paylaş
Arama